Дизайнер Марина ТрошинаBellager Design спроектировала для девушки свою первую квартиру – помещение площадью 65 квадратных метров. метров в новом жилом комплексе на севере Москвы. Важно было создать легкий, элегантный и лаконичный интерьер, в котором ключевую роль будут играть цвет и фактура, а функциональность будет максимальной. Главной задачей автора проекта было сделать пространство естественным продолжением личности клиента: нежным и воздушным, но в то же время выразительным, с целостной концепцией и своим настроением в каждой комнате.
Предмет: Квартира для девушки 60 м²: проект Марины Трошиной с отсылками к прошлому

Марина ТрошинаBellager Design


«Квартира представила хорошие исходные данные: отсутствие перегородок и несущих колонн, потолки выше трех метров и большие окна, выходящие на солнечную сторону», — поясняет автор проекта. «Мне хотелось сохранить это ощущение света и воздуха и сделать его одной из ключевых особенностей будущего интерьера».


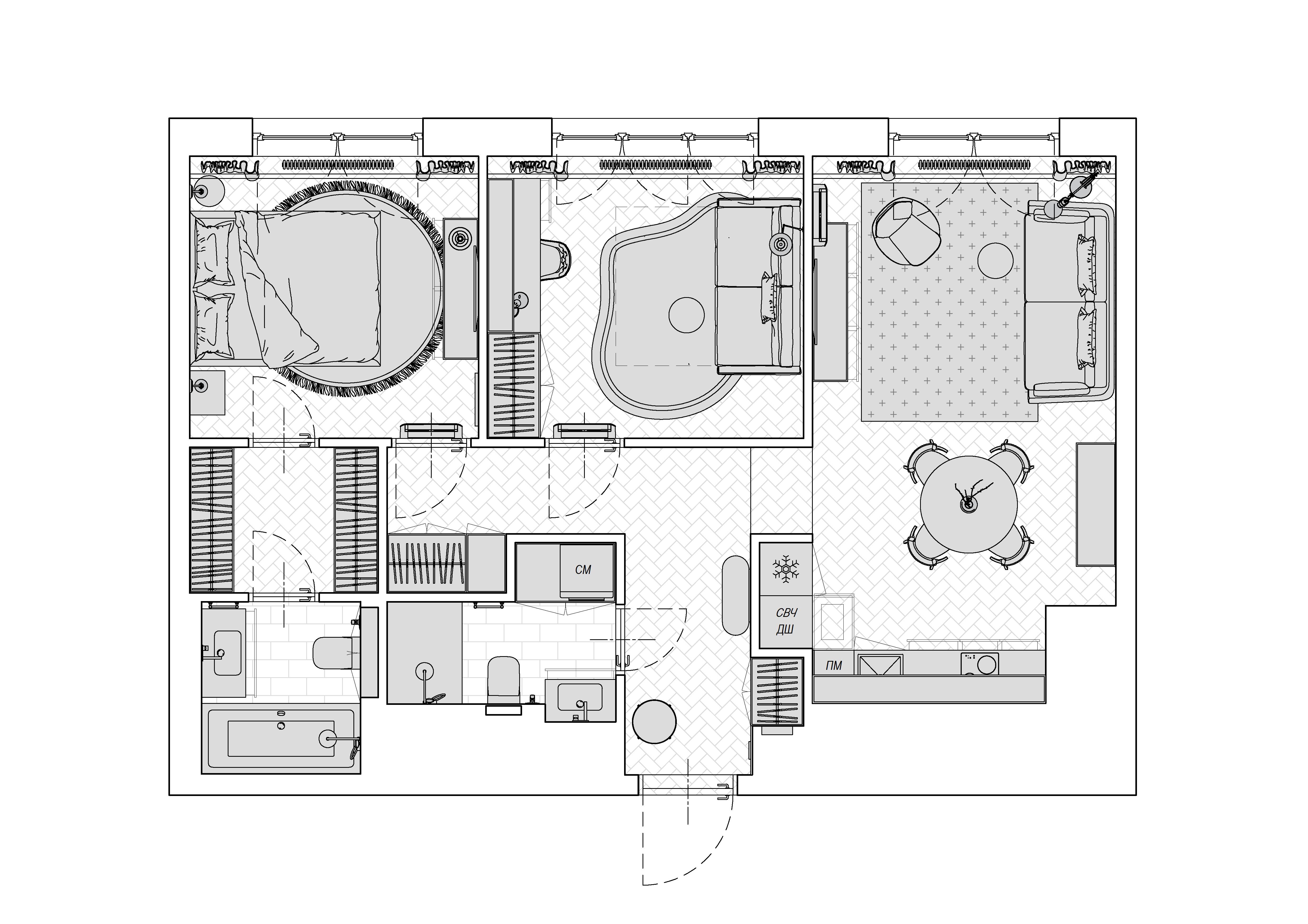
«Благодаря перепланировке на достаточно небольшой площади удалось расположить просторную кухню-гостиную, кабинет, который при необходимости можно использовать как гостевую спальню, блок хозяйской спальни с гардеробной и ванной, гостевой санузел с душевой кабиной и мини-прачечной, а также встроенные системы хранения в прихожей и прихожей. Тщательно продуманная планировка позволяет адаптировать пространство под разные сценарии – от жизни одного человека до семьи, и сохраняет Отсюда актуальность и ценность квартиры в будущем.

«Полы отделаны светлым деревом: они создают теплую основу интерьера, оставаясь при этом нейтральным фоном для остальных элементов. Стены украшены молдингами, профиль и ритм которых адаптированы к современной архитектуре. Они подчеркивают высоту потолков и структурируют пространство. Ванные комнаты облицованы натуральным камнем в сочетании с фактурной керамической плиткой – контраст материалов усиливает выразительность каждого из них».

«Изучив рекомендации клиентки, я заметила, что ей близки теплые пастельные оттенки: от нежного персика до бледно-розового и голубого. Эти цвета стали базовыми, а для точечных акцентов мы использовали более насыщенные вариации: терракотовый, бордовый и синий. В зоне кухни-гостиной фоном служат белые стены. В кабинете использован холодный серый тон, способствующий сосредоточенной работе и спокойному отдыху. Главная спальня выполнена в припудренных тонах, что делает интерьер мягким и романтичным».

«В проекте использована мебель российских производителей, значительная часть предметов выполнена на заказ по авторским эскизам. Особое внимание было уделено мягкой мебели и текстилю: они создают атмосферу уюта и подчеркивают нежную цветовую палитру. Благодаря нашей работе дом буквально наполнился весенним настроением, которое сохраняется здесь даже в самые пасмурные дни. Для меня этот проект — история молодости, время ожидания и радость начала новой жизни».











Самое главное в нашем Телеграмма— для тех, кто спешит
