Архитектор Наталья Рыбакова спроектировала помещение площадью 84 м². квартира на первом этаже клубного комплекса River Residences, архитектурную концепцию которого разработало бюро SPEECH. метров с террасой 61 м² для оперной певицы. Пространство, расположенное в одном из самых зеленых и престижных мест Москвы — Серебряном Бору, отражает творческую натуру владельца и сочетает в себе плавные линии с функциональными решениями для комфортного проживания.
Предмет: Наталья Рыбакова и Zeworkroom: двухэтажная квартира 68 м². метры

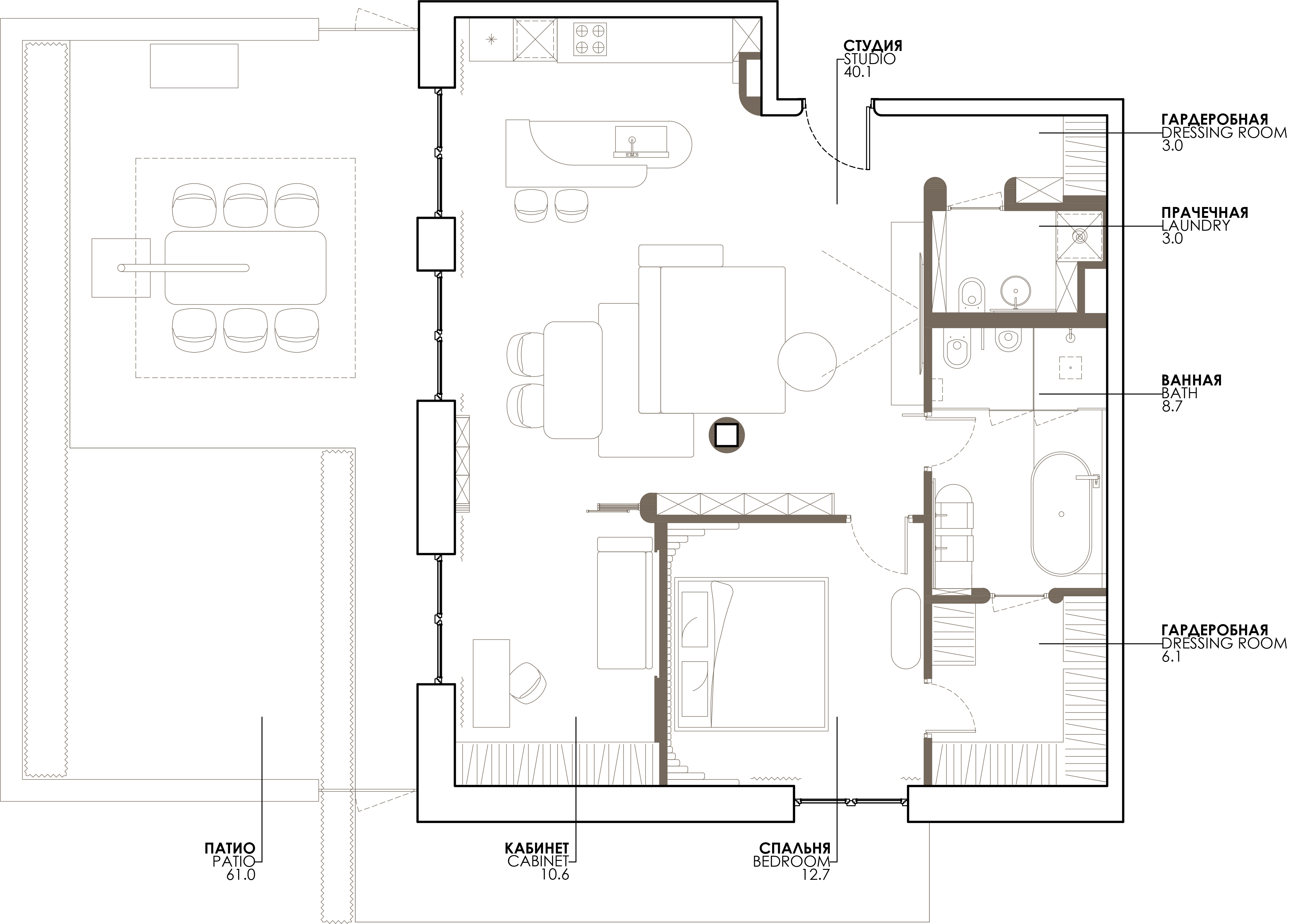
«Квартира изначально имела правильную форму и панорамные окна обеспечивали вид на зеленый двор, но несущая колонна в центре пространства помешала нам создать большую гостиную, о которой мечтал заказчик», — поясняет автор проекта. «Я переосмыслил этот «дефект», округлив колонну и организовав движение вокруг нее, что сделало ее украшением комнаты».


«Проект создавался для молодой жизнерадостной оперной певицы. Ее главным пожеланием было обустроить гостиную с как можно большим количеством окон, создав при этом уединенную музыкальную комнату. Решением стала зеркальная перегородка: при открытии пространство становится единым. При этом стояла непростая планировочная задача: организовать проход в гардеробную, который не пересекался бы со спальной зоной. Для этого мы организовали одноэтажный санузел, который стал функциональным. пространство. буфер и соедините два пространства.

«Мне хотелось передать мягкость и мягкость характера заказчицы через округлые стены и мебель. Впервые в отделке я использовал архитектурный бетон: в ванной он образует текстуру скалы, а в музыкальной комнате он стал основой для панно с луной. Еще я давно хотела использовать в проекте диван-шезлонг, но не хватало места, чтобы вместить его с обеденным столом самостоятельно. появилась гибридная модель, совмещающая функции дивана и скамейки. Еще одной удачной находкой для экономии места стала тонкая перегородка из искусственного камня вместо сплошной стены в ванной. Он эффектно отделяет зону душа и туалета от зоны с ванной.


«Цветовая гамма построена на кремовых тонах с сероватым подтоном. Черный цвет в этом пространстве был противопоказан, поэтому все металлические детали окрашены в никелированный цвет. Поскольку в квартире не было радиаторной системы отопления, но был запас электрической энергии, мы оказались перед выбором системы отопления. Мы остановили свой выбор на полах с водяным подогревом, уложенных как под плитку, так и под паркет. Это потребовало обширного поиска подходящей инженерной панели. шума, мы встроили стандартные, несменные кондиционеры в мебель с перфорированными фасадами.



















Самое главное в нашем Телеграмма— для тех, кто спешит








.jpg)