Дом 147 м² в стиле современного шале в пригороде Уфы — INMYROOM

Новости

Характеристики объектов

Тип дома

деревянный дом

Год реализации

2025 год

Высота потолка

3,15 м

Бюджет

8 миллионов рублей

Стилист

Кристина Сальникова

Фото

Роман Спиридонов

Кратко

Этот дом, расположенный возле Павловского водохранилища в пригороде Уфы, построен большой и дружной семьей на месте своего бывшего дома. Клиенты стремились максимально интегрировать прекрасные виды за окном в интерьер, создав экологически чистый загородный дом, который одновременно отвечал бы всем требованиям современной жизни. Понимая, что без специальных знаний и опыта сложно создать нужную атмосферу, тем более за короткое время, пара пригласила профессионального дизайнера Ларису Байракову.

Подробности

Новый дом спроектирован как двухэтажный с просторной мансардой. Клиенты хотели выделить отдельное приватное пространство, поэтому все помещения находятся на втором этаже. На первом этаже находится большая гостиная с кухней и санузлами на обоих этажах.

Фотография: в стиле, Дом, Проект дня, Дом и коттедж, 4 и более, Более 90 метров, Уфа, Лариса Байракова – фото на INMYROOM
Фотография: в стиле, Дом, Проект дня, Дом и коттедж, 4 и более, Более 90 метров, Уфа, Лариса Байракова – фото на INMYROOM

Как только я приехал на сайт, я влюбился в этот регион. Потрясающие виды на водохранилище, окруженное горами, особенно на закате, вдохновили меня перенести эту красоту в помещение. Я предложил покрасить стены первого этажа в цвет водной глади, и клиенты поддержали эту идею, назвав свой дом домом рыбака.

Фотография: в стиле, Дом, Проект дня, Дом и коттедж, 4 и более, Более 90 метров, Уфа, Лариса Байракова – фото на INMYROOM

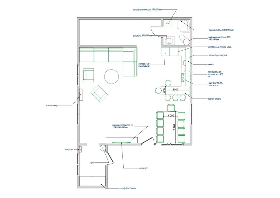
На кухне есть все необходимое для комфортного проживания и приема иногородних гостей. Полуостров в форме барной стойки подчеркивает границы кухни. Его используют для легких завтраков и быстрых перекусов. Под барной стойкой предусмотрены дополнительные шкафчики для посуды. Кухня оборудована всей необходимой техникой: в нижнем ряду шкафов установлена ​​посудомоечная машина шириной 60 см, под раковиной расположена система очистки питьевой воды, в стеллаже шкафа размещены встроенная микроволновая печь и духовка.

Фотография: в стиле, Дом, Проект дня, Дом и коттедж, 4 и более, Более 90 метров, Уфа, Лариса Байракова – фото на INMYROOM
Фотография: в стиле, Дом, Проект дня, Дом и коттедж, 4 и более, Более 90 метров, Уфа, Лариса Байракова – фото на INMYROOM
Фотография: в стиле, Дом, Проект дня, Дом и коттедж, 4 и более, Более 90 метров, Уфа, Лариса Байракова – фото на INMYROOM

Огромный угловой диван для гостиной был изготовлен на заказ по эскизам дизайнера. Модель выбрана без подлокотников, покрытие алькантара – искусственная замша, безопасная для детей, экологически чистая и легко чистится.

ЧИТАТЬ  Невероятные жилищные проекты: от советских «народных домов» до китайских мегакомплексов - INMYROOM
Фотография: в стиле, Дом, Проект дня, Дом и коттедж, 4 и более, Более 90 метров, Уфа, Лариса Байракова – фото на INMYROOM
Фотография: в стиле, Дом, Проект дня, Дом и коттедж, 4 и более, Более 90 метров, Уфа, Лариса Байракова – фото на INMYROOM

В дизайне родительской спальни на втором этаже преобладают мягкие, приглушенные оттенки и удобный текстиль. Идиллию подчеркивают эркеры с видом на озеро.

Фотография: в стиле, Дом, Проект дня, Дом и коттедж, 4 и более, Более 90 метров, Уфа, Лариса Байракова – фото на INMYROOM
Фотография: в стиле, Дом, Проект дня, Дом и коттедж, 4 и более, Более 90 метров, Уфа, Лариса Байракова – фото на INMYROOM
Фотография: в стиле, Дом, Проект дня, Дом и коттедж, 4 и более, Более 90 метров, Уфа, Лариса Байракова – фото на INMYROOM
Фотография: в стиле, Дом, Проект дня, Дом и коттедж, 4 и более, Более 90 метров, Уфа, Лариса Байракова – фото на INMYROOM

Корпусная мебель изготавливается на заказ из натурального дерева, теплая и приятная на ощупь. Декор выбирался постепенно, в ходе работы над проектом. Коврики заказчику понравились, и он придумал разные варианты укладки — на месте пара уже подобрала подходящие для каждой комнаты. Карнизы для наклонных окон позволили эффектно задрапировать мансарду.

Фотография: в стиле, Дом, Проект дня, Дом и коттедж, 4 и более, Более 90 метров, Уфа, Лариса Байракова – фото на INMYROOM
Фотография: в стиле, Дом, Проект дня, Дом и коттедж, 4 и более, Более 90 метров, Уфа, Лариса Байракова – фото на INMYROOM
Фотография: в стиле, Дом, Проект дня, Дом и коттедж, 4 и более, Более 90 метров, Уфа, Лариса Байракова – фото на INMYROOM

Дом получился очень живой, экологичный и оснащен всем необходимым для комфортного проживания в любое время года. Благодарю клиента за безоговорочное доверие и быстрое принятие решений. Семья большая, но решения принимал один человек, что существенно сокращало время на реализацию идей.

Фотография: в стиле, Дом, Проект дня, Дом и коттедж, 4 и более, Более 90 метров, Уфа, Лариса Байракова – фото на INMYROOM
Фотография: в стиле, Дом, Проект дня, Дом и коттедж, 4 и более, Более 90 метров, Уфа, Лариса Байракова – фото на INMYROOM

Семья не планировала хранить в этом доме большое количество вещей, так как он предназначен для отдыха в выходные и праздничные дни. В каждой спальне есть комод и прикроватные тумбочки. В прихожей большой шкаф для хранения верхней и сезонной одежды.

Фотография: в стиле, Дом, Проект дня, Дом и коттедж, 4 и более, Более 90 метров, Уфа, Лариса Байракова – фото на INMYROOM

В доме два санузла: один на первом этаже, другой на втором. Для отделки стен использована краска, полы выложены керамогранитом. Обе ванные комнаты оборудованы душем, туалетом и раковиной со шкафчиком. В ванной на втором этаже установлен большой бойлер, а на первом — стиральная машина.

Фотография: в стиле, Дом, Проект дня, Дом и коттедж, 4 и более, Более 90 метров, Уфа, Лариса Байракова – фото на INMYROOM
Фотография: в стиле, Дом, Проект дня, Дом и коттедж, 4 и более, Более 90 метров, Уфа, Лариса Байракова – фото на INMYROOM

Бренды представленные в проекте

Отделка: краска Деруфа
Пол: ламинат, ИДЕАЛЬНАЯ ФОРМА; плитка, Керама Марацци
Освещение: Майтони; Технический; Евросвет

Хотели бы вы, чтобы ваш проект был опубликован на INMYROOM? Присылайте фотографии интерьера на адрес wow@inmyroom.ru. Введите текст.

Source

Оцените статью
Своими руками