
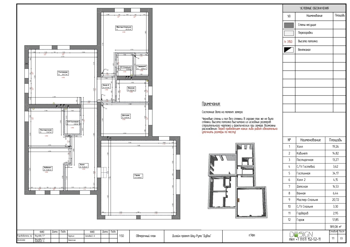
Плюсы дома – многоуровневая крыша и высокие, но узкие окна от пола до потолка. Минусом было то, что площадь гостиной составляла всего 33 квадратных метра. метров, а высота потолков достигала четырех метров, поэтому пришлось решать проблему, как убрать эффект «колодца», сохранив при этом высоту потолка. Никакой перестановки не проводилось, так как авторы впервые участвовали в обустройстве коробки дома. В пространстве, помимо кухни-гостиной, можно было расположить хозяйскую спальню со своим санузлом и гардеробной, кабинет, детскую спальню, санузел с большой котельной, где находится прачечная и гладильная зона. расположен, а также выход в теплый гараж.
Концепция типового дома должна была соответствовать уровню жизни людей разного возраста, чтобы здесь могли чувствовать себя комфортно как молодые, так и пожилые пары. Интерьер должен был быть универсальным, чего хотели все, но при этом важно было поддержать внешний вид дома и концепцию поселка.



