
Когда друзья дизайнера становятся клиентами проекта, получается особый и интуитивно понятный интерьер, с вниманием к качеству, деталям и искусству. Это случилось с Анной Наумовой, Анной Наумовой Дизайн, которая разработала квартиру в 100 квадратных метров. счетчики в настоящем жилом комплексе Тьюмен. Владельцы пространства — супружеская пара, чья жизнь наполнена поездками и впечатлениями, альтруистическим влюбленным в Италию и Марокко.
По теме: Вечный интерьер квартиры составляет 190 квадратных метров. метры в центре Москвы: Проект Nomadform
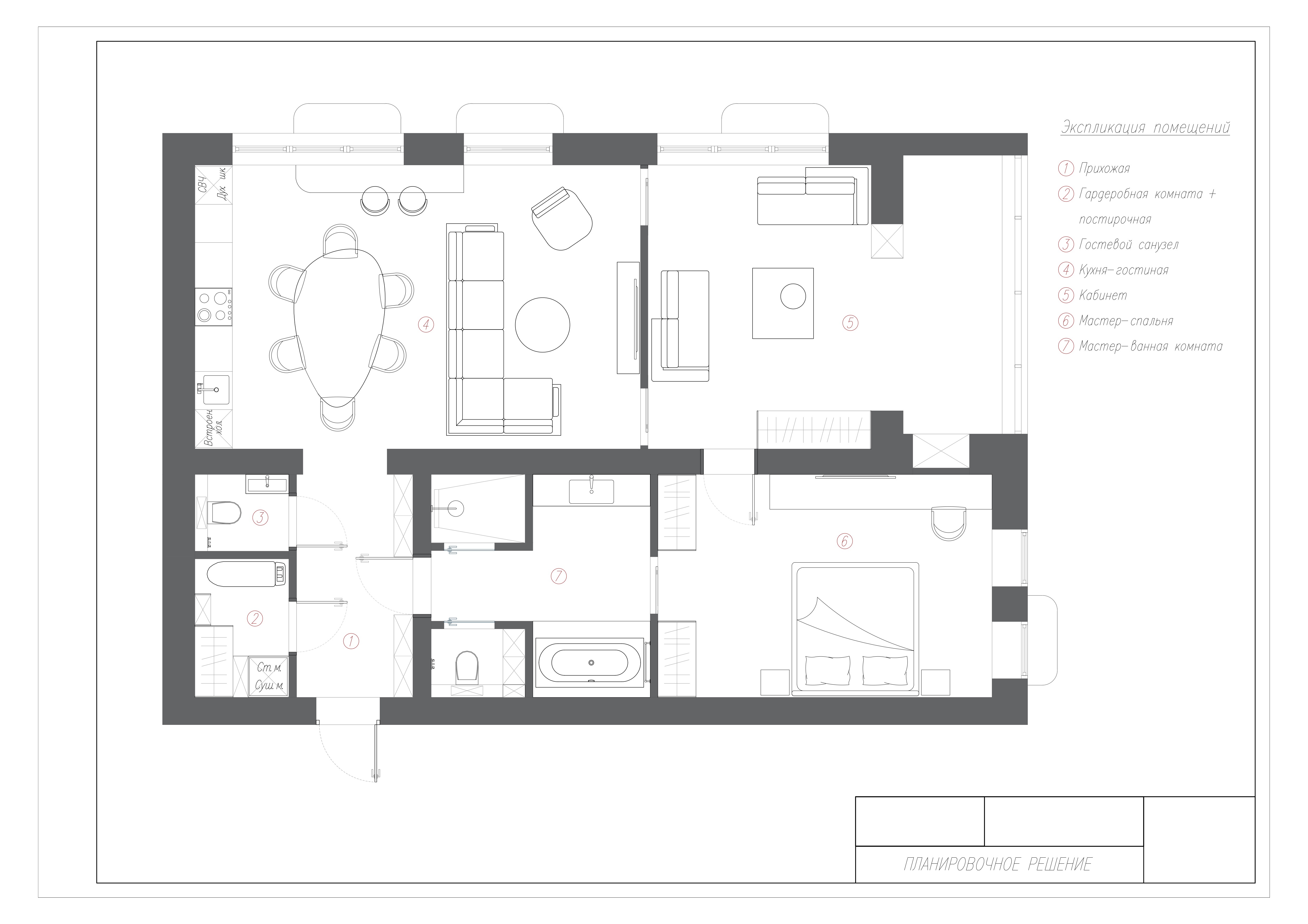
Квартира расположена на втором этаже нового дома, а ветви деревьев видны из окон, бросая тени на стены. Концептуальное решение родилось почти сразу — автор решил создать пространство типа Butik, чтобы было создано ощущение капсулы. В квартире есть круговая планировка коридора слева, есть ванная комната после вечеринки и приглашенная справа, есть вход в ванную, затем кухня, офис и спальня, из которой вы можете снова войти в ванную комнату. Полезная область последнего была увеличена за счет коридора.



