Характеристики объектов
Место
Челябинская область
Тип дома
Знак
Год постройки
2015 год
Год реализации
2025 год
Высота потолка
2,63 м
Домашние животные
две кошки
Бюджет
7 миллионов рублей
Стилист
Оксана Агаркова
Фото
Илья Кульпин
Кратко
В этой двухкомнатной квартире будет жить 55-летняя женщина с двумя кошками. Она готовится выйти на пенсию и дочь решила подарить ей меблированную квартиру, тем самым переехав маму из села в город с развитой инфраструктурой. Дизайнеру Владе Николаевой пришлось подумать об эргономичной планировке и создать уютный интерьер с продуманным хранилищем и всем необходимым оборудованием. Также необходимо было учесть интересы двух кошек: предусмотреть места для туалета, зону кормления, игровой комплекс и ткань против когтей.
Подробности
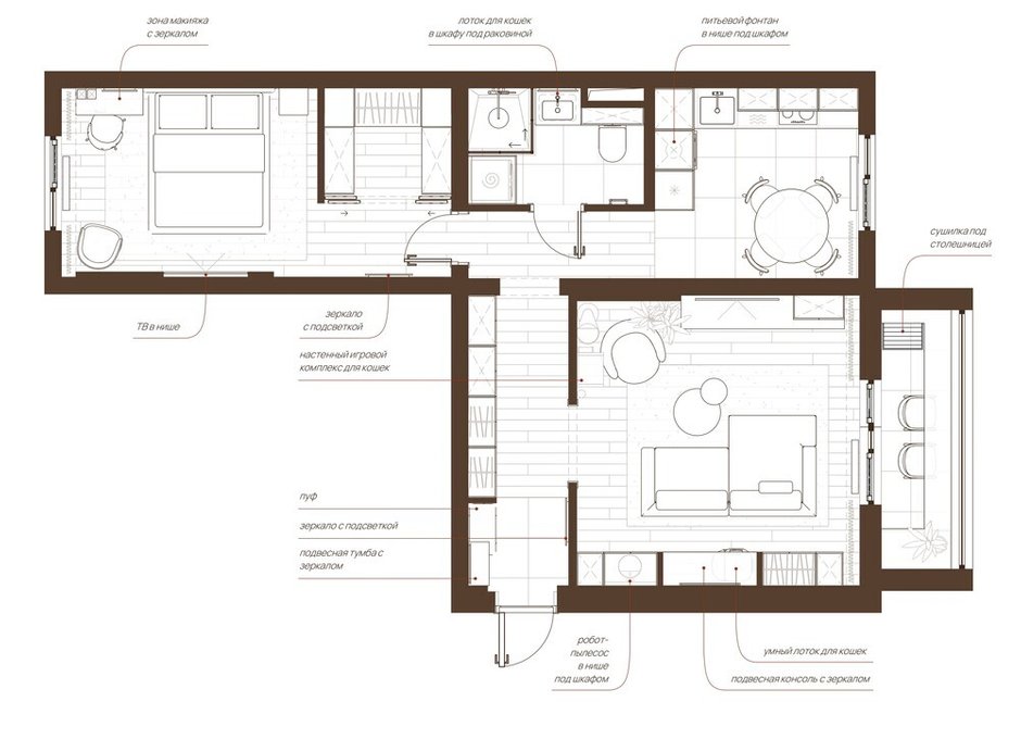
Планировку немного скорректировали: площадь санузла увеличили за счет объединения унитаза и ванны, стену ванной выдвинули вперед, что позволило уменьшить коридор и разместить на кухне два шкафа со встроенной техникой. В спальне возведена перегородка, отделяющая спальную зону от гардеробной. Также мы утеплили балкон, заменили стеклопакеты и установили полы с подогревом, чтобы создать теплицу для растений круглый год.


Еда готовится на заказ. Размеры боксов и всего оборудования стандартные. Кухня оборудована встроенным холодильником, шкафом с духовкой и микроволновой печью, посудомоечной машиной, фильтром для воды через кран и измельчителем пищевых отходов. Вытяжка печи спрятана в верхнем шкафу. Есть витрина для стаканов и сервировочной посуды. Слева от раковины мы устроили нишу для чашек и чайника, ведь мама клиента пьет чай чаще, чем повара. В обеденной зоне есть раздвижной стол и четыре стула. В шкафах также предусмотрено место для хранения еще двух раскладных стульев для гостей.





В гостиной разместили диван, а за ним – большое место для хранения вещей. Подвесная полка была установлена, чтобы визуально скрыть большой умный кошачий туалет. В гостиной также есть просторный кошачий комплекс, ведь кошки хозяина общительны и любят составлять компанию за просмотром телевизора, сидя на своей новой кровати.



Мама клиентки любит читать и вязать. Поэтому мы предусмотрели удобные места для чтения с направленным освещением в спальне и гостиной.


Клиентка хотела обеспечить маме не только комфорт, но и повышение ее уровня жизни. Поэтому мы использовали высококачественные натуральные материалы: инженерные дубовые доски и моющуюся краску. Краска выглядит матовой, но ее легко очистить от загрязнений, что особенно важно, поскольку в квартире живут две кошки. Стену за кроватью оклеили обоями. Расположение рисунка на панно было выбрано исходя из высоты изголовья, что создавало эффект цельного полотна.



Шкафы для прихожей и гостиной изготавливаются на заказ в соответствии с высотой теневого профиля подвесного потолка. Купили на рынке готовый шкаф для спальни: расставили, подогнали стены и потолок под размеры.


Из ванной комнаты убрали ванну и установили душ, так как у клиента гипертония и купание противопоказано. Также мы установили шкаф со стиральной машиной и сушилкой, установили умный подвесной унитаз, перенесли трубы и заменили полотенцесушитель. Раковину дополняет тумба со встроенным окошком для кошек. В это окно встроен второй лоток, ведь кошкам психологически важно иметь два места для туалета.



Фото квартиры До
Бренды представленные в проекте
Полы: инженерные панели Greenline; керамогранит, Ceradim
Сантехника: утра.вечера; Винсеа
Декор: часы, INMYROOM
Смесители: Paulmark
Освещение: Майтони
Похожие записи:
- Как бюджетно отремонтировали уставшую двухкомнатную квартиру площадью 38 м² в Брежневке (фото до и после) — INMYROOM
- Превратите «убитую» хрущевку в уютную и стильную двухкомнатную квартиру площадью 45 м² — INMYROOM
- До и после: как однокомнатную квартиру в хрущевке площадью 29 м² превратили в двухкомнатную с гардеробной + видео — INMYROOM



.jpg)




