
Работая над интерьером частного дома в городе Свободный Амурской области, дизайнер Татьяна Гарбаренко стремилась создать светлое и комфортное пространство, напоминающее близость к природе и обеспечивающее весь необходимый функционал для семьи из трех человек.
По теме: Семейный дом в натуральных тонах в Подмосковье: проект Александры Чернышовой
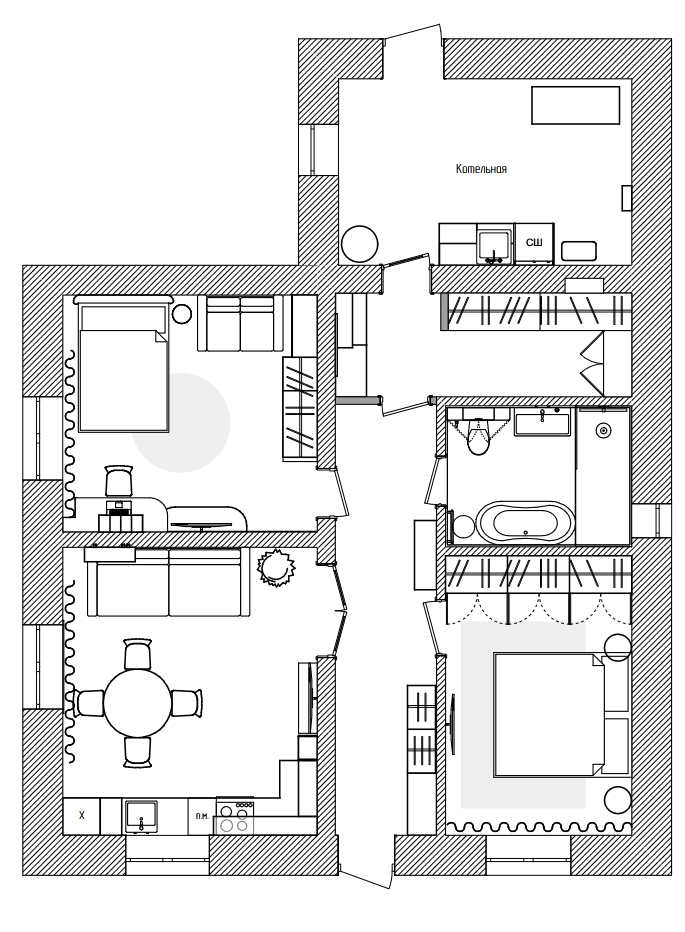
Одноэтажный дом жилой площадью 74 м². метров были переданы дизайнеру для работы в готовом виде. Предыдущий владелец строил его для себя (некоторые комнаты даже были полностью отремонтированы), но в итоге объект приобрели клиенты Татьяны — семейная пара с 11-летней дочерью. Планировка дома была вполне классической: отдельная кухня и две гостиные. Главное, чего не хватало, — это общей зоны, где вся семья могла бы проводить время вместе. Также предстояло поработать над местом хранения верхней одежды. Среди преимуществ дизайнер сразу отметил наличие ниши для гардеробной в конце коридора и хорошее пространство санузла с окном.



