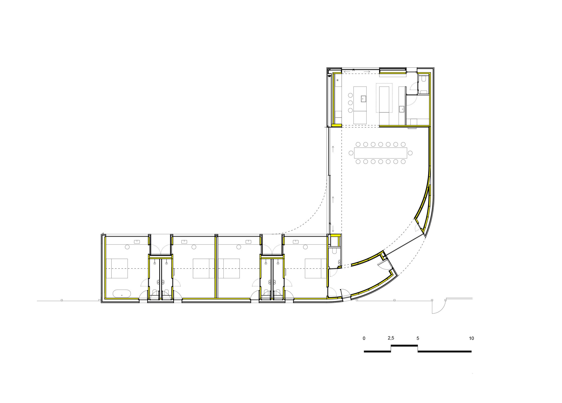
Местная архитектурная студия Made спроектировала изогнутую пристройку к дому на западном побережье Латвии. Здание, названное Домом Павилосты в честь города, в котором оно расположено, занимает площадь 300 квадратных метров. метров и предназначался для владельца дома через дорогу, которому требовались дополнительные комнаты для гостей и более просторное помещение для встреч.
Предмет: Белоснежный дом на вершине холма в Онтарио: проект Akb Architects

«Павилоста, прибрежный город в Латвии, — это уникальное место, где дикое море встречается с историческими зданиями и давними традициями города», — объясняет партнер Made Линда Круминя. Клиент хотел, чтобы здание отражало прибрежное расположение города. Поэтому архитекторы использовали типичный для этих мест образ сарая и придали ему мягкие и динамичные формы, напоминающие песчаные дюны, созданные морским ветром.

«Мы твердо верили, что любая новая архитектура должна гармонировать с масштабом существующих зданий, стремясь при этом отразить видение клиента, который хотел передать ощущение моря, ветра, дюн и волн», — объясняет Круминя. «Ветер и вода, кажется, сформировали геометрию дома так же, как они навсегда формируют и преображают дюны Павилосты».

Узкий заостренный объем на западе, огибающий угол участка, плавно переходит в более широкий изогнутый навес на севере. Конструктивной основой пристройки является каркас из поперечно-клееной древесины, заполненный панелями из поперечно-клееной древесины (CLT). Каркас и панели остались открытыми – такое решение подчеркивает внутреннюю отделку, динамичную и меняющуюся геометрию здания. В самой узкой части строения расположены четыре гостевые спальни, а центральную изогнутую часть занимают большая гостиная, столовая и кухня. Раздвижные стеклянные двери во всю высоту ведут в сад, который отделяет пристройку от главного дома. Внутренняя отделка из необработанного дерева контрастирует с черными поверхностями, такими как обугленные изделия из дерева на кухне и в спальнях, а также темные каменные полы.

Снаружи дом облицован узкими деревянными досками, а изогнутая крыша полностью покрыта черепицей из натурального сланца. Он был выбран из-за его особой способности отражать и преломлять солнечный свет, скользящий по извилистой поверхности крыши. «Мы выполнили бесчисленное количество итераций моделирования, чтобы добиться правильной кривизны для участка, контекста и функции дома», — говорит Крумина. «Эта кривая постоянно меняется, если смотреть под разными углами и при разном освещении, постоянно напоминая нам, насколько эмоционально заряженной может быть такая изогнутая геометрия».






Самое главное в нашем Телеграмма— для тех, кто спешит

.jpg)

.jpg)




